在 SolidWorks 绘制工程图的过程中,带剖视的轴测视图能直观展现零件内部结构,让图纸阅读者快速理解零件构造,相比普通视图实用性更高。很多人会用截图粘贴的方式制作这类视图,操作繁琐还容易影响图纸精度,今天就给大家分享一个原生、快捷的绘制方法,无需额外截图,直接在工程图中一步生成。
具体操作步骤
1. 打开 SolidWorks软件,调出需要编辑的目标工程图文件,准备进行视图绘制操作;

2. 点击软件上方工具栏中的【剖视图】功能,在左侧弹出的选项卡中选择【半剖视】,接着选中俯视图中圆的中心位置,作为半剖视的基准点;

3. 移动鼠标,从基准点处投影生成一个新的半剖视图,为了避免和原有三视图重叠混淆,可先将这个新视图放置在图框外侧的空白区域;

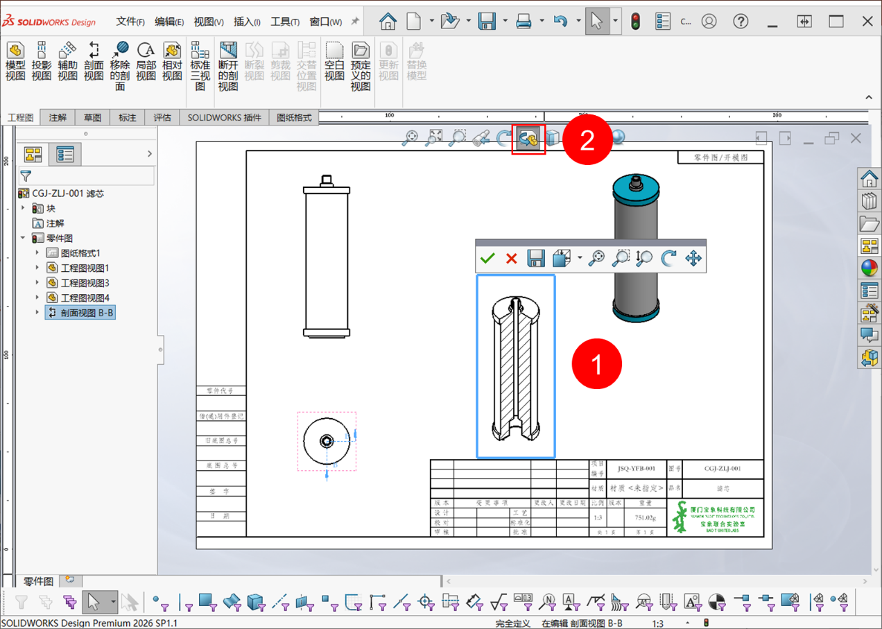
4. 用鼠标右键单击刚生成的半剖视图,在弹出的右键菜单中,选择【等轴测剖面视图】选项,此时视图会自动转换为等轴测的剖视样式;

5. 再次右键点击该等轴测剖视视图,依次选择【视图对齐】→【解除对齐关系】,解除视图的固定对齐约束,方便后续调整位置;

6. 用鼠标左键按住解除约束后的等轴测剖视视图,直接拖拽到工程图图框内的合适位置,完成视图的位置摆放;

7. 若生成的等轴测视图角度不符合查看需求,可自定义调整视角:单击选中该视图,点击软件上方的【3D 工程图视图】按钮,根据实际的结构展示需求,手动调整视图角度,直到呈现出清晰、合适的视角。

用这个方法绘制带剖视的轴测视图,全程在 SolidWorks 工程图界面内操作,无需借助其他工具,既保证了图纸的规范性,又大幅提升了绘制效率!